ТАРИФ "Базовий"
ТАРИФ "Стандарт"
ТАРИФ "Преміум"
Стандарт
"Тариф 'Стандарт' — це оптимальний варіант для тих, хто хоче отримати якісний ремонт без зайвих турбот. Ви отримуєте повний пакет креслень і схем, який враховує не лише технічні аспекти, а й ваші естетичні вподобання. Цей тариф підходить для тих, хто бажає зосередитись на виборі стильних меблів, оздоблювальних матеріалів та освітлення, залишаючи будівельні тонкощі професіоналам. Тариф 'Стандарт' гарантує, що всі роботи будуть виконані чітко за планом, а результат перевершить ваші очікування."

Титульний лист
Титульний лист містить ключову інформацію про проєкт, зокрема:
● адресу об’єкта;
● контакти замовника та виконавця.
Ці стислі дані є необхідними для будівельників під час реалізації проєкту, уточнення та погодження деталей.
Для захисту контактної інформації та змісту проєкту рекомендується заламінувати титульний лист.

Перелік аркушів
Перелік аркушів створений для зручного та швидкого пошуку необхідної сторінки.
Кількість пунктів і аркушів залежить від особливостей кожного проєкту.

Обмірний план
Обмірний план — це результат високоточного вимірювання об'єкта нашими фахівцями, який відображає фактичний стан приміщень. Він слугує основою для проєкту та містить:
● ширину, довжину та висоту кожної стіни;
● габарити ніш, конструктивних і інженерних виступів;
● розміри вікон, дверей, порталів, арок і отворів;
● фіксацію несучих конструкцій та інженерних комунікацій.
Обмірний план забезпечує точне просторове планування приміщень і документує первинний стан об’єкта перед початком проєктування, оздоблювальних робіт, ремонту чи реконструкції.

Обмірний план 3D
Тривимірна візуалізація об'єкта на етапі обмірів дозволяє оперативно оцінити його вигляд на початковій стадії будівельних робіт.

План демонтажу
План демонтажу — це зрозуміла схематична візуалізація процесу демонтажу, яка охоплює стіни, підлогу, ніші, виступи, арки та інші конструктивні елементи об'єкта. Завдяки цьому плану ви точно знатимете, що саме необхідно демонтувати, а також матимете уявлення про обсяг робіт.

План демонтажу 3D
Тривимірна візуалізація демонтажу стін та інших елементів приміщень дає змогу швидко оцінити масштаб робіт і легко зорієнтуватися на об’єкті.

План монтажу
План монтажу містить усю необхідну інформацію про майбутні стіни та перегородки, включаючи матеріали, розміри та об’єм. Це дає змогу попередньо обговорити з майстрами вартість робіт і уникнути переплат.
На схемі зазначено всі пріоритетні розміри приміщень, основні точки прив’язки та взаємозв’язок елементів. Такий підхід унеможливлює помилки під час формування геометрії об’єкта. Усі ділянки проєктуються, виходячи з реальних розмірів приміщення та майбутніх меблів, щоб уникнути проблем при їхньому облаштуванні.

План монтажу 3D
Тривимірна візуалізація плану монтажу дозволяє швидко зорієнтуватися на об'єкті, де і що потрібно зводити.

Схема монтажу фальш-стін та ніш
Схема монтажу фальш-стін та ніш містить детальні креслення для зведення конструкцій із гіпсокартону, ніш або додаткових перегородок. У цьому плані вказано:
- точні розміри та прив’язки елементів до існуючих стін;
- рекомендації щодо матеріалів для монтажу;
- координати для розташування сантехніки, комунікацій або інших елементів всередині конструкцій;
- детальні 3D-візуалізації для наочного розуміння розташування.
Ця схема дозволяє чітко спланувати монтажні роботи, уникнути помилок під час зведення та забезпечує зручність у подальшій експлуатації.

Схема монтажу фальш - стін та ніш
Схема монтажу фальш-стін та ніш містить детальні креслення для зведення конструкцій із гіпсокартону, ніш або додаткових перегородок. У цьому плані вказано:
• точні розміри та прив’язки елементів до існуючих стін;
• рекомендації щодо матеріалів для монтажу;
• координати для розташування сантехніки, комунікацій або інших елементів всередині конструкцій;
• детальні 3D-візуалізації для наочного розуміння розташування.
Ця схема дозволяє чітко спланувати монтажні роботи, уникнути помилок під час зведення та забезпечує зручність у подальшій експлуатації.

План після перепланування
План заповнення дверних прорізів містить детальну інформацію про встановлення дверей у приміщеннях. На плані показано схему відкривання дверей, що дає змогу визначити напрямок їх відкриття та оптимальне розміщення в просторі. Специфікація дверей включає точні розміри полотна та дверних отворів, а також типи дверей (стандартні, розсувні, з фрамугами тощо).

План після перепланування (3D)
Тривимірна візуалізація всього об’єкта в цілому дозволяє швидко оцінити планування вашого простору в 3D та наочно побачити, який вигляд матиме квартира після завершення ремонтних робіт.

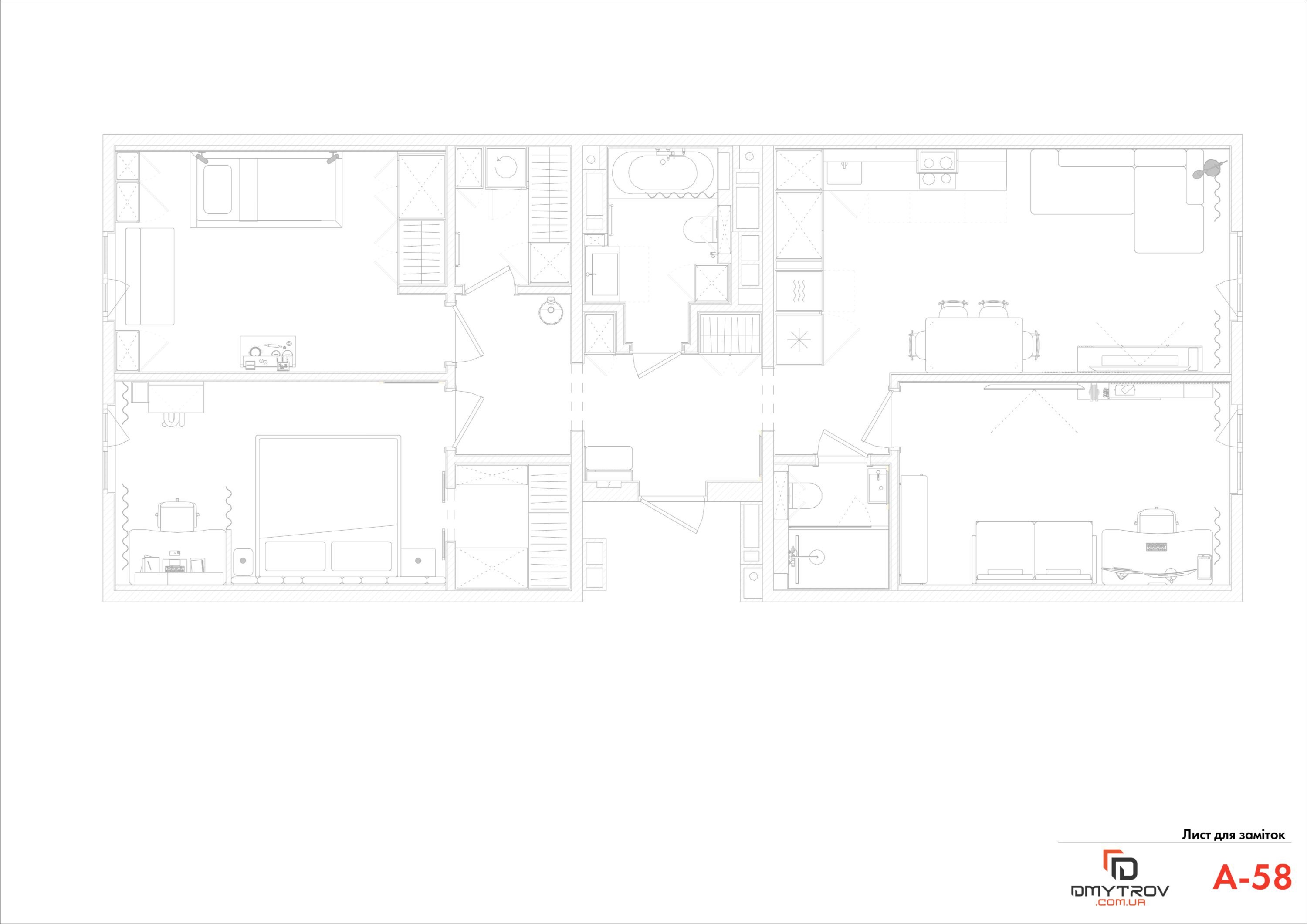
План розміщення меблів
План розміщення меблів показує оптимальне розташування меблів у приміщеннях з урахуванням їхнього призначення та ергономіки. На ньому зазначені точні розміри і прив'язки для позиціювання меблів відносно стін, вікон та дверей, а також враховано взаємне розташування предметів інтер'єру. Цей план допомагає забезпечити зручне використання простору, сприяє ефективному плануванню та раціональному розподілу місця для комфортного проживання чи роботи.

План та специфікація меблів
План і специфікація меблів містять детальну інформацію про меблі, які будуть розміщені в приміщенні, з кольоровим розподілом для зручності орієнтації. На плані вказано меблі, які можна придбати в магазині за стандартними розмірами, а також меблі, які будуть виготовлені під замовлення. Кожна категорія меблів позначена різними кольорами, що дозволяє легко відрізнити готові вироби від тих, що потребують індивідуального виготовлення. Специфікація містить опис та точні розміри.

План заповнення дверних прорізів
План заповнення дверних прорізів містить детальну інформацію про встановлення дверей у приміщеннях. На плані показано схему відкривання дверей, що дає змогу визначити напрямок їх відкриття та оптимальне розміщення в просторі. Специфікація дверей включає точні розміри полотна та дверних отворів, а також типи дверей (стандартні, розсувні, з фрамугами тощо).

План підлоги
План підлоги надає детальну інформацію про конструкцію підлогового покриття в кожному приміщенні об’єкта. На сторінці відображено:
• точні площі та типи покриттів для кожної кімнати;
• умовні позначення з деталізацією видів підлогових матеріалів;
• типові вузли з поясненням конструктивних шарів підлоги (гідроізоляція, тепло- та звукоізоляція, стяжка, підлогове покриття);
• рекомендації щодо обробки специфічних зон, таких як душова кабіна чи зони з підігрівом.
Цей план допомагає забезпечити якісне укладання покриття, відповідно до проєкту, та врахувати всі необхідні технічні вимоги.

План плінтусів
План плінтусів демонструє схему розташування плінтусів у всіх приміщеннях об’єкта. На сторінці подано:
• умовні позначення для зон встановлення плінтусів;
• загальну специфікацію плінтусів із зазначенням їх загальної довжини;
• типовий вузол із деталізацією конструкції монтажу плінтуса.
Цей план забезпечує точність розрахунків матеріалів та правильний монтаж плінтусів відповідно до технічних вимог.

План та розгортки сантехніки
План та розгортки сантехніки містять детальну інформацію про розташування всіх сантехнічних елементів у приміщеннях, їх специфікацію з описом та кількістю, а також схему підключення кожного з них. На розгортках чітко позначено координати виводів труб (каналізаційних, гарячої та холодної води). Окрім того, надаються рекомендації щодо підключення дренажу кондиціонера, проточного фільтра, а також шумоізоляції стояків.

План та розгортки сантехніки
План та розгортки сантехніки містять детальну інформацію про розташування всіх сантехнічних елементів у приміщеннях, їх специфікацію з описом та кількістю, а також схему підключення кожного з них. На розгортках чітко позначено координати виводів труб (каналізаційних, гарячої та холодної води). Окрім того, надаються рекомендації щодо підключення дренажу кондиціонера, проточного фільтра, а також шумоізоляції стояків.

Схема опалення та розміщення радіаторів
Схема опалення та розміщення радіаторів відображає детальну схему розташування радіаторів у приміщеннях з вказанням їхніх технічних характеристик. У кресленні враховані такі аспекти:
• Специфікація приміщень із зазначенням площ.
• Типи, розміри та кількість радіаторів.
• Рекомендації щодо монтажу.
Схема дозволяє точно визначити місця встановлення обладнання для забезпечення оптимального опалення всіх зон квартири.

Схема підігріву підлоги
Схема підігріву підлоги відображає план розташування системи теплої підлоги у всіх приміщеннях об'єкта. На схемі чітко позначені зони покриття, їхні розміри та місця встановлення.
Також надано загальну специфікацію, яка містить тип і площу підігріву підлоги для кожного приміщення, а також загальні рекомендації для ефективного монтажу та експлуатації системи.

План оздоблювальних матеріалів
План оздоблювальних матеріалів демонструє розташування та характеристики матеріалів, які використовуються для оздоблення кожного приміщення. У ньому зазначені типи матеріалів, зони їх застосування (позначені кольоровими контурами) та площа, необхідна для кожного матеріалу.
Ця схема сприяє оптимізації вибору матеріалів і забезпечує контроль за відповідністю виконаних робіт.

План стель
План стель містить детальну інформацію про монтаж стельових конструкцій у кожному приміщенні. За допомогою різних видів штрихувань візуально позначено тип стелі для кожного приміщення, вказано площу кожної ділянки, а також відображено конструктивні елементи, такі як прихований карниз або тіньовий профіль. Крім того, у плані надано типові вузли монтажу, що полегшують виконання робіт.

План вентиляції та кондиціонування
План вентиляції та кондиціонування відображає всі елементи, необхідні для забезпечення комфортного мікроклімату об’єкта: кондиціонери та системи вентиляції. У плані вказані площі приміщень для розрахунку необхідної потужності обладнання, розміри для прив’язки обладнання, а також надано рекомендації щодо встановлення зворотних клапанів, організації відведення дренажу від кондиціонерів тощо.

План розміщення освітлювальних приладів
План розміщення освітлювальних приладів містить детальну схему розташування та прив'язки всіх освітлювальних елементів у приміщеннях, що дозволяє чітко визначити їх місцезнаходження та оптимальне розподілення світла для створення комфортної атмосфери.

План груп світла й вимикачів
На плані груп світла й вимикачів показано зв'язок між джерелами освітлення та вимикачами, які ними керують. Кожна група освітлення позначена окремим кольором, що дозволяє легко визначити, який вимикач відповідає за конкретну групу світла. У специфікації вказано тип освітлення, його кількість та інші характеристики. Цей план допомагає електрикам швидко зрозуміти організацію освітлення на об'єкті та забезпечує зручне підключення і налаштування системи освітлення.

План розміщення електроточок та їх специфікація
План розміщення електроточок та їх специфікація містить точне розташування всіх електричних точок на об'єкті, таких як вимикачі, розетки, термостати та інші елементи. Специфікація надає детальну інформацію про кількість необхідних вимикачів, розеток, рамок та інших пристроїв, що забезпечує точне придбання всіх необхідних комплектуючих. Цей план дозволяє електрикам швидко й ефективно здійснити монтаж, дотримуючись усіх технічних вимог.

План маркування кутів приміщення
План маркування кутів приміщення містить інформацію про всі кути стін у кожному приміщенні. Цей план спрощує орієнтування при пошуку потрібної розгортки стін: якщо вам потрібна інформація про певну стіну, достатньо визначити, між якими кутами вона розташована, і знайти відповідну розгортку. Такий підхід забезпечує зручність і точність під час виконання робіт.

Розгортки стін
Розгортки стін — це паралельні проекції стін, які містять вичерпну інформацію для виконання монтажних і оздоблювальних робіт. На розгортках позначені всі електроточки, сантехнічні виводи, меблі, оздоблювальні матеріали, освітлення та інші елементи. Крім того, вказані всі необхідні розміри та прив’язки, що забезпечує точність і зрозумілість для майстрів при виконанні робіт.

3D – види приміщень
На цій сторінці представлено тривимірний вигляд окремого приміщення з двох протилежних ракурсів. Такий формат дозволяє детально розглянути планування, пропорції, розташування меблів та загальну атмосферу простору.

Розгортки стін
Розгортки стін — це паралельні проекції стін, які містять вичерпну інформацію для виконання монтажних і оздоблювальних робіт. На розгортках позначені всі електроточки, сантехнічні виводи, меблі, оздоблювальні матеріали, освітлення та інші елементи. Крім того, вказані всі необхідні розміри та прив’язки, що забезпечує точність і зрозумілість для майстрів при виконанні робіт.

3D – види приміщень
На цій сторінці представлено тривимірний вигляд окремого приміщення з двох протилежних ракурсів. Такий формат дозволяє детально розглянути планування, пропорції, розташування меблів та загальну атмосферу простору.

Розгортки стін
Розгортки стін — це паралельні проекції стін, які містять вичерпну інформацію для виконання монтажних і оздоблювальних робіт. На розгортках позначені всі електроточки, сантехнічні виводи, меблі, оздоблювальні матеріали, освітлення та інші елементи. Крім того, вказані всі необхідні розміри та прив’язки, що забезпечує точність і зрозумілість для майстрів при виконанні робіт.

3D – види приміщень
На цій сторінці представлено тривимірний вигляд окремого приміщення з двох протилежних ракурсів. Такий формат дозволяє детально розглянути планування, пропорції, розташування меблів та загальну атмосферу простору.

Розгортки стін
Розгортки стін — це паралельні проекції стін, які містять вичерпну інформацію для виконання монтажних і оздоблювальних робіт. На розгортках позначені всі електроточки, сантехнічні виводи, меблі, оздоблювальні матеріали, освітлення та інші елементи. Крім того, вказані всі необхідні розміри та прив’язки, що забезпечує точність і зрозумілість для майстрів при виконанні робіт.

3D – види приміщень
На цій сторінці представлено тривимірний вигляд окремого приміщення з двох протилежних ракурсів. Такий формат дозволяє детально розглянути планування, пропорції, розташування меблів та загальну атмосферу простору.

Розгортки стін
Розгортки стін — це паралельні проекції стін, які містять вичерпну інформацію для виконання монтажних і оздоблювальних робіт. На розгортках позначені всі електроточки, сантехнічні виводи, меблі, оздоблювальні матеріали, освітлення та інші елементи. Крім того, вказані всі необхідні розміри та прив’язки, що забезпечує точність і зрозумілість для майстрів при виконанні робіт.

3D – види приміщень
На цій сторінці представлено тривимірний вигляд окремого приміщення з двох протилежних ракурсів. Такий формат дозволяє детально розглянути планування, пропорції, розташування меблів та загальну атмосферу простору.

Розгортки стін
Розгортки стін — це паралельні проекції стін, які містять вичерпну інформацію для виконання монтажних і оздоблювальних робіт. На розгортках позначені всі електроточки, сантехнічні виводи, меблі, оздоблювальні матеріали, освітлення та інші елементи. Крім того, вказані всі необхідні розміри та прив’язки, що забезпечує точність і зрозумілість для майстрів при виконанні робіт.

3D – види приміщень
На цій сторінці представлено тривимірний вигляд окремого приміщення з двох протилежних ракурсів. Такий формат дозволяє детально розглянути планування, пропорції, розташування меблів та загальну атмосферу простору.

Розгортки стін
Розгортки стін — це паралельні проекції стін, які містять вичерпну інформацію для виконання монтажних і оздоблювальних робіт. На розгортках позначені всі електроточки, сантехнічні виводи, меблі, оздоблювальні матеріали, освітлення та інші елементи. Крім того, вказані всі необхідні розміри та прив’язки, що забезпечує точність і зрозумілість для майстрів при виконанні робіт.

3D – види приміщень
На цій сторінці представлено тривимірний вигляд окремого приміщення з двох протилежних ракурсів. Такий формат дозволяє детально розглянути планування, пропорції, розташування меблів та загальну атмосферу простору.

Розгортки стін
Розгортки стін — це паралельні проекції стін, які містять вичерпну інформацію для виконання монтажних і оздоблювальних робіт. На розгортках позначені всі електроточки, сантехнічні виводи, меблі, оздоблювальні матеріали, освітлення та інші елементи. Крім того, вказані всі необхідні розміри та прив’язки, що забезпечує точність і зрозумілість для майстрів при виконанні робіт.

3D – види приміщень
На цій сторінці представлено тривимірний вигляд окремого приміщення з двох протилежних ракурсів. Такий формат дозволяє детально розглянути планування, пропорції, розташування меблів та загальну атмосферу простору.

Розгортки стін
Розгортки стін — це паралельні проекції стін, які містять вичерпну інформацію для виконання монтажних і оздоблювальних робіт. На розгортках позначені всі електроточки, сантехнічні виводи, меблі, оздоблювальні матеріали, освітлення та інші елементи. Крім того, вказані всі необхідні розміри та прив’язки, що забезпечує точність і зрозумілість для майстрів при виконанні робіт.

3D – види приміщень
На цій сторінці представлено тривимірний вигляд окремого приміщення з двох протилежних ракурсів. Такий формат дозволяє детально розглянути планування, пропорції, розташування меблів та загальну атмосферу простору.

Розгортки стін
Розгортки стін — це паралельні проекції стін, які містять вичерпну інформацію для виконання монтажних і оздоблювальних робіт. На розгортках позначені всі електроточки, сантехнічні виводи, меблі, оздоблювальні матеріали, освітлення та інші елементи. Крім того, вказані всі необхідні розміри та прив’язки, що забезпечує точність і зрозумілість для майстрів при виконанні робіт.

3D – види приміщень
На цій сторінці представлено тривимірний вигляд окремого приміщення з двох протилежних ракурсів. Такий формат дозволяє детально розглянути планування, пропорції, розташування меблів та загальну атмосферу простору.

Загальна специфікація матеріалів
Загальна специфікація матеріалів містить перелік усіх оздоблювальних матеріалів, що використовуються в проєкті. У документі вказано типи матеріалів, їх площу застосування, а також примітки щодо особливостей розрахунків або використання. Цей план слугує важливим інструментом для підбору, закупівлі та точного контролю витрат матеріалів на об'єкті.

Меблі на замовлення
Ми детально розробляємо дизайн і функціональність меблів, що виготовляються на замовлення, і надаємо точні схеми та креслення для меблів, які буде створено спеціально для вашого об'єкта.

Меблі на замовлення
Ми детально розробляємо дизайн і функціональність меблів, що виготовляються на замовлення, і надаємо точні схеми та креслення для меблів, які буде створено спеціально для вашого об'єкта.

Меблі на замовлення
Ми детально розробляємо дизайн і функціональність меблів, що виготовляються на замовлення, і надаємо точні схеми та креслення для меблів, які буде створено спеціально для вашого об'єкта.

Меблі на замовлення
Ми детально розробляємо дизайн і функціональність меблів, що виготовляються на замовлення, і надаємо точні схеми та креслення для меблів, які буде створено спеціально для вашого об'єкта.

Меблі на замовлення
Ми детально розробляємо дизайн і функціональність меблів, що виготовляються на замовлення, і надаємо точні схеми та креслення для меблів, які буде створено спеціально для вашого об'єкта.

Меблі на замовлення
Ми детально розробляємо дизайн і функціональність меблів, що виготовляються на замовлення, і надаємо точні схеми та креслення для меблів, які буде створено спеціально для вашого об'єкта.

Меблі на замовлення
Ми детально розробляємо дизайн і функціональність меблів, що виготовляються на замовлення, і надаємо точні схеми та креслення для меблів, які буде створено спеціально для вашого об'єкта.

Меблі на замовлення
Ми детально розробляємо дизайн і функціональність меблів, що виготовляються на замовлення, і надаємо точні схеми та креслення для меблів, які буде створено спеціально для вашого об'єкта.

Лист для заміток
Тут ви можете зберігати всю важливу інформацію: від контактів майстрів, які працювали над вашим об'єктом, до заміток про матеріали чи меблі. Усі записи впорядковані в одному місці та завжди доступні, щоб зробити процес ремонту максимально комфортним.

Порівняння тарифів
Технічний проект Стандарт
Дивитись ціну тариф "Стандарт"